Who i am
About Me (she/her)
I am a student at The University of Wisconsin-Stout majoring in Interior Design and minoring in Architecture and Real Estate Property Management. I pride myself on being hard-working, creative, and dependable. I strive to provide strong communication, adaptability, and problem-solving in educational and professional settings.
Education & Experience
Univeristy of Wisconsin-Stout
Bachelor of Fine Arts in Interior Design | 2024
Minors in Architecture & Real Estate Property Management
2024
interior design intern
Gulfstream | Appleton, WI
Coming soon!
2023
Interior design Intern
Jodi Gillespie Interior Design | Minneapolis, MN
21-22
interior design intern
The Designer’s Touch | Mauston, WI
2024 Interior Design
Senior Show
Project summary
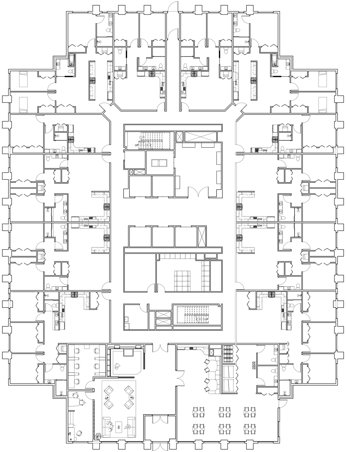
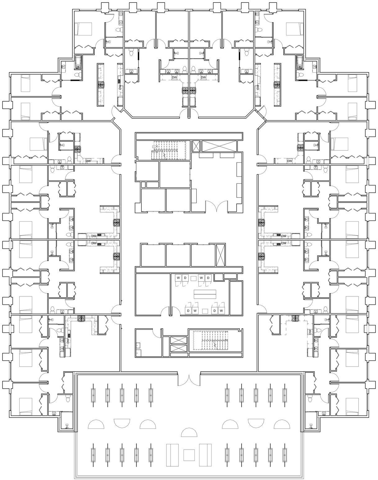
The focus of my senior studio project is to design a multi-story apartment complex located in Green Bay, Wisconsin. It will showcase common living spaces within the building as well as different room types to accommodate the needs of surrounding communities.
Design concept statement
The concept of this Bayview Gardens is to put a spotlight on Green Bay’s industrial and manufacturing heritage. The apartment will feature a neutral color palette with subtle pops of color that pay homage to the city’s location and sports history. The combination of warm walnut textures and cool black metal accents provides residents with a sense of home. Colorful tiles in the kitchens and bathrooms will create a welcoming juxtaposition against brick walls that allow for decorative flexibility. Furniture in the community spaces will consist of clean lines and neutral leather fabrics to create a timeless feel and provide a sense of community amongst the residents. Bright gold accents will add a touch of elegance throughout the apartment complex. Natural daylight will flood community and resident spaces through tall windows adorned with black muntins.
Floor Plans

3 BED
2 BATH
1 BED
1 BATH
DW
2 BED
1.5 BATH
DW
2 BED
1.5 BATH
DW
UP
EL.
STAIRS
EL.
EL.
DW
2 BED
1.5 BATH
GARBAGE
COLLECTION
DW
3 BED
2 BATH
1 BED
1 BATH
DW
2 BED
1.5 BATH
2 BED
1.5 BATH
EL.
EL.
EL.
APARTMENT
STORAGE
RESIDENT
STORAGE
2 BED
1.5 BATH
DW
3 BED
2 BATH
JANITOR
CL.
RESIDENT
OFFICE SPACE
MAIL SPACE
MNGR
OFFICE
LOBBY
STAIRS
UP
3 BED
2 BATH
MULTIPURPOSE SPACE
DW
Level 01

3 BED
2 BATH
1 BED
1 BATH
DW ​DW
2 BED
1.5 BATH
DW
2 BED
1.5 BATH
DW
STAIRS
EL.
EL.
EL.
DW
2 BED
1.5 BATH
GARBAGE
COLLECTION
DW
3 BED
2 BATH
1 BED
1 BATH
DW ​DW
2 BED
1.5 BATH
RESIDENT
SEATING
AREA
2 BED
1.5 BATH
DW ​DW
1 BED
1 BATH
EL.
EL.
EL.
APARTMENT
STORAGE
W
D
W
D
RESIDENT
STORAGE
D
W
D
W
JANITOR
CL.
STAIRS
RESIDENT
SEATING
AREA
2 BED
1.5 BATH
DW ​DW
1 BED
1 BATH
3 BED
2 BATH
DW
2 BED
1.5 BATH
DW
2 BED
1.5 BATH
DW
DW
3 BED
2 BATH
Level 02-04

3 BED
2 BATH
1 BED
1 BATH
DW
2 BED
1.5 BATH
DW
DW
2 BED
1.5 BATH
STAIRS
EL.
EL.
EL.
DW
2 BED
1.5 BATH
GARBAGE
COLLECTION
DW
3 BED
2 BATH
1 BED
1 BATH
DW
2 BED
1.5 BATH
DW ​DW
2 BED
1.5 BATH
DW
3 BED
2 BATH
EL.
EL.
EL.
APARTMENT
STORAGE
W
D
W
D
RESIDENT
STORAGE
D
W
D
W
JANITOR
CL.
STAIRS
DW ​DW
2 BED
1.5 BATH
3 BED
2 BATH
DW
ROOFTOP
GARDEN
Level 05
Reflected Ceiling Plan
DW

DW
DW
DW
DW
DW
DW
UP
DW
DW ​DW
DW ​DW
UP
Ceiling Height
15'-0"
Lobby
Multipurpose Space
Unit Axon Views
01 Bed | 01 Bath
02 Bed | 1.5 Bath
03 Bed | 02 Bath
Other Projects
Steelcase NEXT
Workplace Design
Urban Olive Brewing Co.
Restaurant Design
Palm Springs Residence
Residential Design
Kitchen Remodel
Residential Design
Prada Retail Store
Retail Design
Bathroom Remodel
Residential Design